Investment Property Available
For Sale
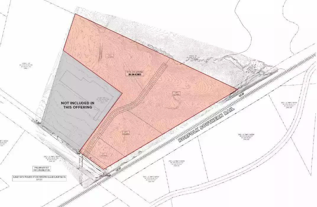
  • Land
  • Davidson Ridge Industrial Park

    US Highway 64, Lexington, NC 27292 United States
    Investment Property Available
    For Sale
  • Land
  • Davidson Ridge Industrial Park

    US Highway 64, Lexington, NC 27292 United States
    Lot Size
    1,223,600 SF / 28.09 Acres
    Built
    2024
    Lot Size
    1,223,600 SF / 28.09 Acres
    Built
    2024

    OVERVIEW

    Fully entitled industrial land for sale, 28.09 acres offered at $1,300,000. Recently annexed into City of Lexington. All water/sewer extensions approved. Zoned Heavy Industrial (HI). Site is rail accessible through Norfolk Southern.

    Details

    Sale Price:
    $1,300,000 USD
    Lot Size:
    1,223,600 SF / 28.09 Acres
    Year Built:
    2024
    Davidson Ridge Industrial Park

    LOCATION

    With your permission we and our partners would like to use cookies in order to access and record information and process personal data, such as unique identifiers and standard information sent by a device to ensure our website performs as expected, to develop and improve our products, and for advertising and insight purposes.

    Alternatively click on More Options and select your preferences before providing or refusing consent. Some processing of your personal data may not require your consent, but you have a right to object to such processing.

    You can change your preferences at any time by returning to this site or clicking on  Cookies

    More Options
    Agree and Close
    These cookies ensure that our website performs as expected,for example website traffic load is balanced across our servers to prevent our website from crashing during particularly high usage.
    These cookies allow our website to remember choices you make (such as your user name, language or the region you are in) and provide enhanced features. These cookies do not gather any information about you that could be used for advertising or remember where you have been on the internet.
    These cookies allow us to work with our marketing partners to understand which ads or links you have clicked on before arriving on our website or to help us make our advertising more relevant to you.
    Agree All
    Reject All
    SAVE SETTINGS