Available
For Lease
  • Offices
  • A Grade Office Accommodation in Prime Adelaide CBD

    121 King William Street, Adelaide, SA 5000 Australia
    Available
    For Lease
  • Offices
  • A Grade Office Accommodation in Prime Adelaide CBD

    121 King William Street, Adelaide, SA 5000 Australia
    Energy Rating
    5.0
    Energy Rating
    5.0

    OVERVIEW

    121 King William Street is ideally positioned on the corner of King William and Waymouth Streets taking full advantage of all the thriving local amenity, extending the idyllic staff environment. An abundance of premium food outlets and cafes, and just a short walk will find you in the premium shopping of Rundle Mall or the iconic Adelaide Central Markets.


    Effortless commute and serviced by all forms of public transport including tram stop at the front doorstep, providing free link to the Adelaide Railway station. 


    121 King William Street has two tenancies available for immediate occupation.


    928 sqm* located on level 4 is a predominantly open plan tenancy benefiting from floor to ceiling windows, and the existing fitout includes large boardroom and multiple meeting room configurations, dedicated server room, expansive kitchen and exclusive courtyard balcony overlooking King William Street. Utilising the existing fitout provides a fast cost-effective office accommodation that can be tailored to suite your corporate needs.


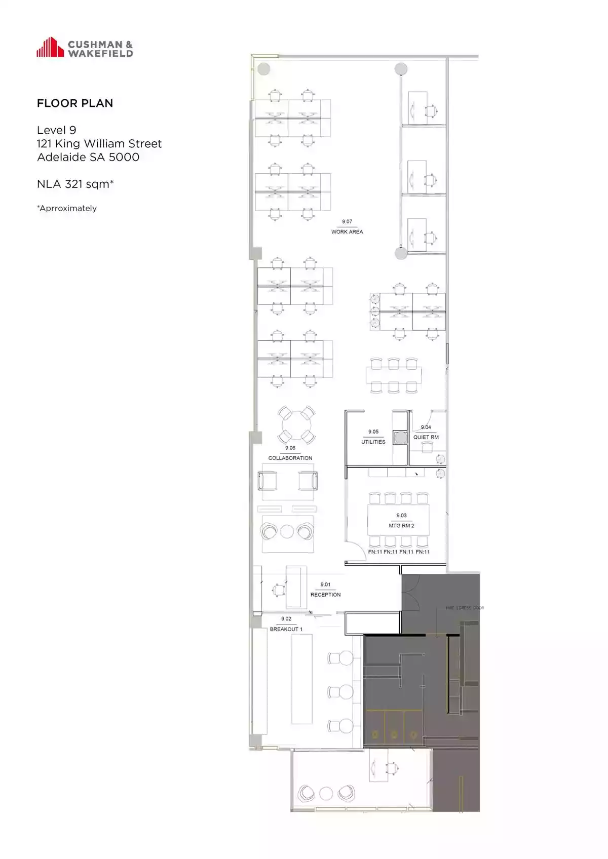
    321 sqm* located on level 9 is a spacious fitted office, providing is a reception, generous boardroom, inviting kitchen, multiple offices, casual meeting spaces and open plan workstations to accommodate 26 work points.


    Secure basement car parking, ample bike storage and End of Trip shower and locker facilities adds to the staff convenience. 


    For further information and to arrange an inspection, please call Adam Hartley. 


    *Approximately

    RLA 315726

    - Adelaide CBD

    Details

    Rental Price:
    Contact us for pricing
    Energy Rating:
    5.0

    LOCATION

    RELATED PROPERTIES

    195 North Terrace
    195 North Terrace
    195 North Terrace
    195 North Terrace
    195 North Terrace
    195 North Terrace
    Available
    For Lease ● Offices
    Adelaide's Most Affordable Office Accommodation

    195 North Terrace
    Adelaide, SA 5000
    Australia

    Rental Price: Contact us for pricing

    27 Currie Street
    27 Currie Street
    27 Currie Street
    27 Currie Street
    27 Currie Street
    Available
    For Lease ● Offices
    Limited Space Remaining - 415sqm* on Level 3

    27 Currie Street
    Adelaide, SA 5000
    Australia

    Rental Price: Contact us for pricing

    265 Pirie Street
    265 Pirie Street
    265 Pirie Street
    265 Pirie Street
    265 Pirie Street
    265 Pirie Street
    Available
    For Lease ● Offices
    Character Building with Modern Comfort

    265 Pirie Street
    Adelaide, SA 5000
    Australia

    Rental Price: Contact us for pricing

    50 King William St
    50 King William St
    50 King William St
    50 King William St
    50 King William St
    50 King William St
    Available
    For Lease ● Offices
    Affordable Full Floor Tenancy in the Heart of the CBD

    50 King William St
    Adelaide, SA 5000
    Australia

    Rental Price: Contact us for pricing

    41 Currie Street
    41 Currie Street
    41 Currie Street
    41 Currie Street
    41 Currie Street
    Available
    For Lease ● Offices
    Discover Your Perfect Brand-New Workspace in Bustling Currie Street

    41 Currie Street
    Adelaide, SA 5000
    Australia

    Rental Price: Contact us for pricing

    422 King William Street
    422 King William Street
    422 King William Street
    422 King William Street
    422 King William Street
    422 King William Street
    Available
    For Lease ● Offices
    Available Now!

    422 King William Street
    Adelaide, SA 5000
    Australia

    Rental Price: Contact us for pricing

    With your permission we and our partners would like to use cookies in order to access and record information and process personal data, such as unique identifiers and standard information sent by a device to ensure our website performs as expected, to develop and improve our products, and for advertising and insight purposes.

    Alternatively click on More Options and select your preferences before providing or refusing consent. Some processing of your personal data may not require your consent, but you have a right to object to such processing.

    You can change your preferences at any time by returning to this site or clicking on Privacy & Cookies.
    MORE OPTIONS
    AGREE AND CLOSE
    These cookies ensure that our website performs as expected,for example website traffic load is balanced across our servers to prevent our website from crashing during particularly high usage.
    These cookies allow our website to remember choices you make (such as your user name, language or the region you are in) and provide enhanced features. These cookies do not gather any information about you that could be used for advertising or remember where you have been on the internet.
    These cookies allow us to work with our marketing partners to understand which ads or links you have clicked on before arriving on our website or to help us make our advertising more relevant to you.
    Agree All
    Reject All
    SAVE SETTINGS