Available
For Lease
  • Industrial/Warehouse
  • First class industrial facility – available as two units of 719 sqm* or one tenancy of 1,438 sqm*

    11 Watervale Drive, Green Fields, SA 5107 Australia
    Available
    For Lease
  • Industrial/Warehouse
  • First class industrial facility – available as two units of 719 sqm* or one tenancy of 1,438 sqm*

    11 Watervale Drive, Green Fields, SA 5107 Australia

    OVERVIEW

    Cushman & Wakefield's industrial team is pleased to present to the market for lease 11 Watervale Drive, Green Fields, two brand new, premium quality office warehouses well-positioned within a highly sought-after industrial precinct.


    Ready for occupation March 2026.


    Key features include:

    • Brand new, corporate quality industrial premises

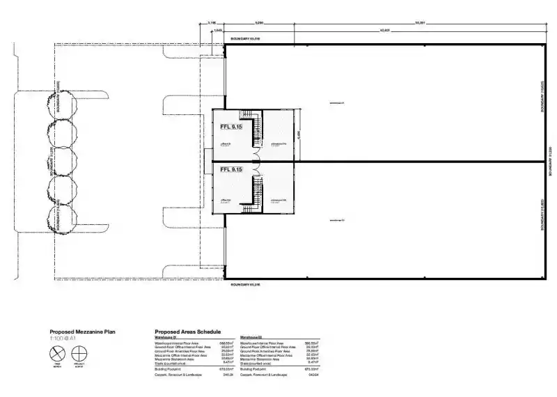
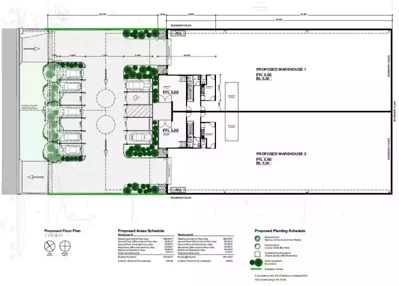
    • Available as two units of 719 square metres* or one standalone tenancy of 1,438 square metres*

    • Each unit comprises 587 square metres* of high clearance warehousing and 132 square metres* of corporate showroom / office over two levels

    • 9.5m* internal warehouse clearance height

    • High quality finishes throughout

    • Generous on-site parking and loading provisions


    For more information please don't hesitate to contact the marketing agents at Cushman & Wakefield.


    *Approx.

    RLA 315726

    - Adelaide Metro

    Details

    Rental Price:
    Contact us for pricing

    AVAILABILITIES

    LOCATION

    RELATED PROPERTIES

    genericimage
    Leased
    For Lease ● Industrial/Warehouse
    Significant Industrial /Transport Facility – Areas From 2,000Sqm–12,000Sqm Available

    400-416 Martins Road
    Green Fields, SA 5107
    Australia

    Rental Price: Contact us for pricing

    Unit 2/6 Nucera Court
    Unit 2/6 Nucera Court
    Unit 2/6 Nucera Court
    Unit 2/6 Nucera Court
    Unit 2/6 Nucera Court
    Leased
    For Lease ● Industrial/Warehouse
    Brand New Office Warehouse Of 1,460 Square Metres

    Unit 2/6 Nucera Court
    Green Fields, SA 5107
    Australia

    Rental Price: Contact us for pricing

    Unit 2/6 Nucera Court
    Unit 2/6 Nucera Court
    Unit 2/6 Nucera Court
    Unit 2/6 Nucera Court
    Unit 2/6 Nucera Court
    Unit 2/6 Nucera Court
    Leased
    For Lease ● Industrial/Warehouse
    Brand New Office Warehouse Of 1,460Sqm* – Ready For Occupation

    Unit 2/6 Nucera Court
    Green Fields, SA 5107
    Australia

    Rental Price: Contact us for pricing

    With your permission we and our partners would like to use cookies in order to access and record information and process personal data, such as unique identifiers and standard information sent by a device to ensure our website performs as expected, to develop and improve our products, and for advertising and insight purposes.

    Alternatively click on More Options and select your preferences before providing or refusing consent. Some processing of your personal data may not require your consent, but you have a right to object to such processing.

    You can change your preferences at any time by returning to this site or clicking on Privacy & Cookies.
    MORE OPTIONS
    AGREE AND CLOSE
    These cookies ensure that our website performs as expected,for example website traffic load is balanced across our servers to prevent our website from crashing during particularly high usage.
    These cookies allow our website to remember choices you make (such as your user name, language or the region you are in) and provide enhanced features. These cookies do not gather any information about you that could be used for advertising or remember where you have been on the internet.
    These cookies allow us to work with our marketing partners to understand which ads or links you have clicked on before arriving on our website or to help us make our advertising more relevant to you.
    Agree All
    Reject All
    SAVE SETTINGS